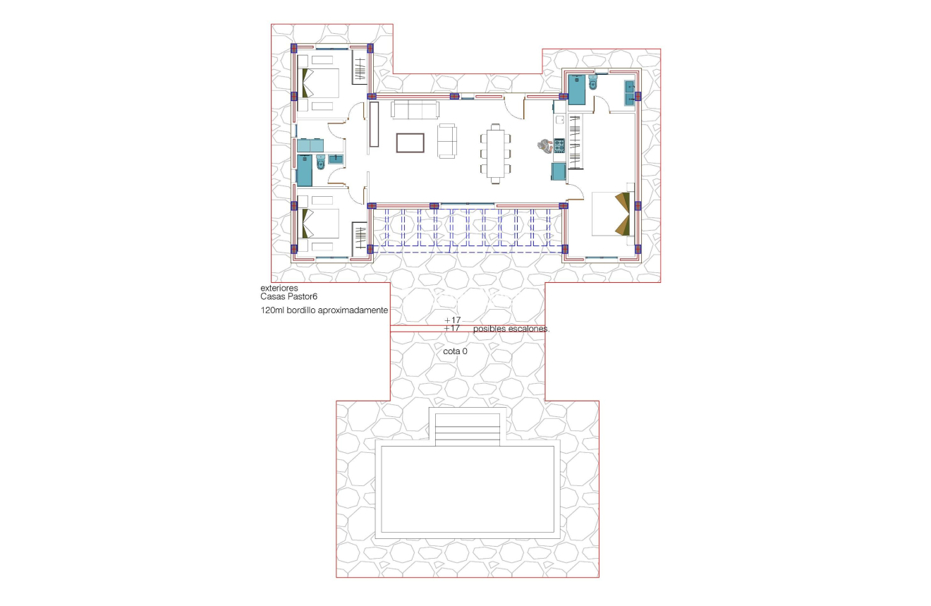
Nieuwbouwwoningen in Pinoso op landelijke percelen U kunt kiezen uit villa's met traditionele Spaanse accenten of supermoderne, lichte en strakke afwerkingen. Er zijn verschillende groottes beschikbaar, variërend van 3 tot 6 slaapkamers en met 1 of 2 verdiepingen. Er zijn verschillende legale percelen beschikbaar (rustiek met een minimum van 10.000 m2), sommige op korte afstand van de stad, sommige volledig privé en de meest populaire liggen op 5-10 minuten rijden van een stad. We hebben een perceel voor elke smaak, allemaal met een prachtig uitzicht en allemaal met water + elektriciteit inbegrepen in de prijs en high-speed internet beschikbaar. In de gepubliceerde prijs is 30.000 euro voor het perceel inbegrepen. Als het gekozen perceel duurder is, wordt het verschil bijbetaald. Van de grootste en beste bouwer in de omgeving en we gebruiken materialen van topkwaliteit voor een perfecte afwerking. Alle huizen zijn voorzien van een terras van 2 m rondom het zwembad (kleur en patroon naar keuze), 1 m rondom het huis, een afgesloten entree, een omheining van 3.000 m2, voorinstallatie van airconditioning via leidingen, standaardkeuken, veiligheidsdeur, Duitse draai-kiepramen (of schuiframen indien gewenst), ingebouwde open haard (in traditionele afwerking), voorinstallatie van televisie en internet, grindpad van enkele meters rondom het huis, septic tank. De badkamers zijn voorzien van een douchekolom, douchebak of badkuip, wastafelmeubels (verschillende kleuren naar keuze) met wastafels, kranen en spiegels, evenals een ruime keuze aan wandtegels. Ruime keuze aan keramische vloertegels, in verschillende kleuren, met houteffect, enz. De keukens zijn voorzien van kasten met standaarddeuren en handgrepen, een roestvrijstalen spoelbak en kraan, en voorinstallatie voor oven, vaatwasser en afzuigkap. Keuze uit verschillende granieten werkbladen. Apparatuur niet inbegrepen. Marmeren trap (crème, wit of grijs) en leuningen inbegrepen, plus leuningen voor de veranda aan de voorzijde. U kunt het huis naar eigen smaak aanpassen, de meeste interne wijzigingen zijn gratis, u kunt kiezen uit verschillende afwerkingen voor de tegels, keukenbladen, marmer voor de trappen of planken, enz. De huizen kunnen worden uitgebreid en we kunnen zelfs uw eigen ontwerp bouwen. U kunt verschillende extra's bijboeken, zoals een groter zwembad, een enkele of dubbele garage, een gastenverblijf, enz., tegen een meerprijs. De stad Pinoso ligt op ongeveer 45 minuten rijden landinwaarts van Alicante en de witte zandstranden van de Costa Blanca, en dicht bij de grens van Murcia en Alicante. Het heeft iets minder dan 8.000 inwoners. Pinoso, ook bekend als El Pinos, dankt zijn naam aan de dennenbomen die de bergketens in de omgeving bedekken. Pinoso biedt een landelijke Spaanse levensstijl, zonder verkeerslichten, bijna zonder verkeer, waarbij de enige files worden veroorzaakt door tractoren die druiven naar de Bodega brengen. De velden zijn beplant met wijngaarden, amandelbomen en olijfbomen. In februari staan de velden vol met roze bloeiende amandelbomen. Pinoso heeft veel bars, restaurants en winkels, een nieuw 24-uurs medisch centrum, tandartsen, twee basisscholen en één middelbare school, en een theater. Er is een uitstekend sportcentrum met buitenzwembaden, tennisbanen, voetbalvelden en een fitnessruimte, een bibliotheek en vele andere faciliteiten, waaronder een prachtige picknickplaats tussen de pijnbomen, met barbecues, zitjes en stromend water.
Neem contact op met ons team van experts en wij zullen al uw twijfels oplossen.