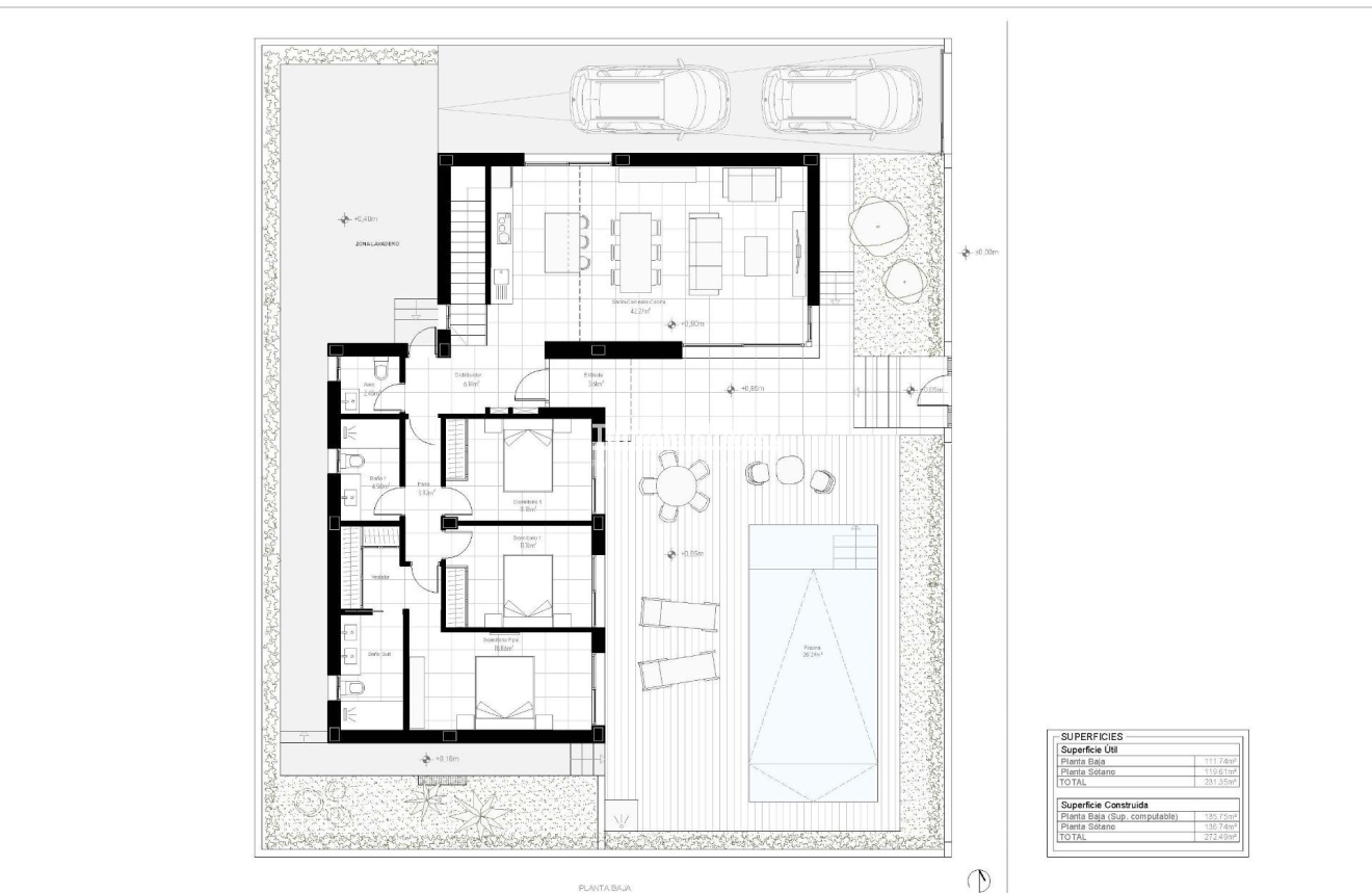
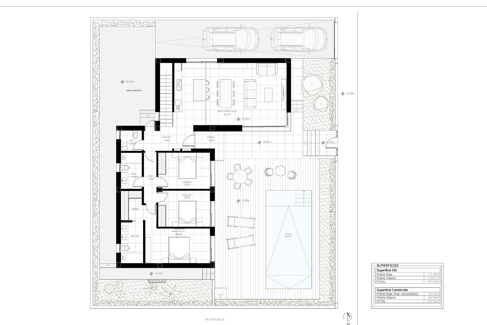
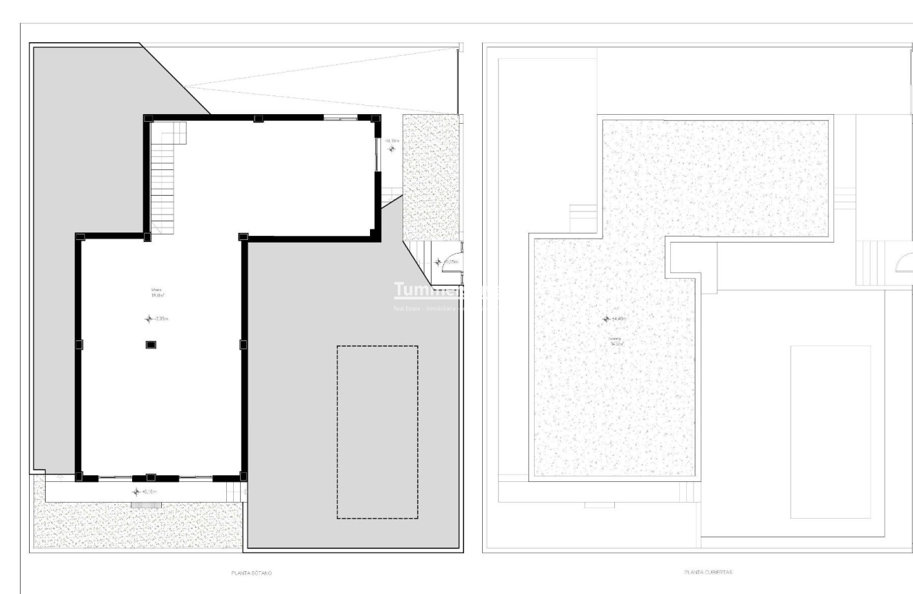
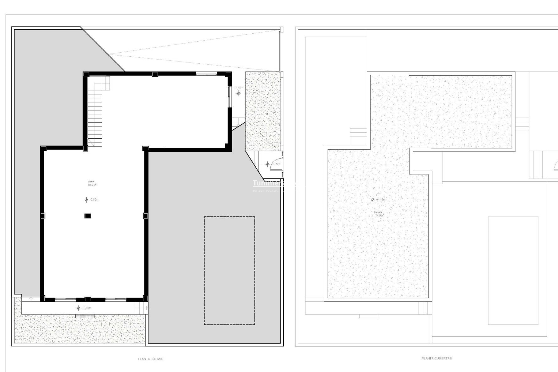
Nieuwbouwwoningen in Santa Rosalia Lake and Life Resort – Exclusief wonen in Murcia Toplocatie nabij de Mar Menor Deze nieuwbouwwoningen zijn gelegen in het prestigieuze Santa Rosalia Lake and Life Resort, een besloten gated community in de regio Murcia. Omgeven door eersteklas golfbanen en op slechts 4 km van de gouden stranden van de Mar Menor, biedt dit project een perfecte combinatie van privacy, natuur en luxe wonen. Het levendige kustplaatsje Los Alcázares ligt op slechts 5 minuten rijden, terwijl de historische stad Cartagena op 15 minuten afstand ligt. De internationale luchthaven van Murcia ligt op ongeveer 22 km afstand, waardoor u vanuit de belangrijkste Europese steden gemakkelijk bereikbaar bent. Eigentijdse villa's ontworpen voor comfort Elke villa heeft een modern, open ontwerp met 3 slaapkamers, 2 badkamers en een gastentoilet. De lichte en ruime woonkamer heeft een volledig uitgeruste keuken met een eet- en zithoek en komt uit op een aangelegde privétuin met een zwembad. Er is ook een eigen parkeerplaats op eigen terrein. Op het lagere niveau biedt een afgewerkte kelder van 136 m² met gladde muren, water- en elektriciteitsaansluitingen een veelzijdige ruimte voor extra slaapkamers, een kantoor, een fitnessruimte, een bioscoop of een speelruimte voor kinderen. Hoogwaardige afwerking en duurzame voorzieningen Aandacht voor detail is terug te vinden in elk aspect van deze woningen. Hoogtepunten zijn onder meer een versterkte veiligheidsdeur, gemotoriseerde rolluiken in de slaapkamers, ingebouwde kasten en een keuken met inbouwapparatuur. Duurzaam wonen wordt gegarandeerd door zes geïnstalleerde fotovoltaïsche zonnepanelen. De tuin is volledig afgewerkt met kunstgras, palmbomen, automatische irrigatie en decoratieve struiken. Een efficiënt airconditioningsysteem zorgt het hele jaar door voor comfort. Santa Rosalia Lake and Life Resort – Een oase in Caribische stijl Het resort beschikt over 126.000 m² prachtig aangelegde groene zones met wandel- en fietspaden, sportfaciliteiten, paddle- en tennisbanen, minigolf, hondenparken, recreatieruimtes en een clubhuis. Het middelpunt is een spectaculaire kristalheldere lagune van 17.000 m² met witte zandstranden en palmbomen, die een echte Caribische sfeer creëren. Twee eilanden bieden recreatiegebieden, waaronder een bar en charmante strandclubs verspreid over het meer. Ideaal voor ontspanning, sport en investering Dit unieke project is perfect voor wie op zoek is naar een hoofdverblijfplaats, een vakantiehuis of een investering met een hoog rendement. De strategische ligging biedt gemakkelijke toegang tot culturele, gastronomische en recreatieve attracties, waardoor het een uitzonderlijke keuze is voor zowel gezinnen als golfliefhebbers. Neem vandaag nog contact met ons op om uw nieuwe villa in Santa Rosalia Lake and Life Resort te reserveren en te genieten van de mediterrane levensstijl.
Neem contact op met ons team van experts en wij zullen al uw twijfels oplossen.