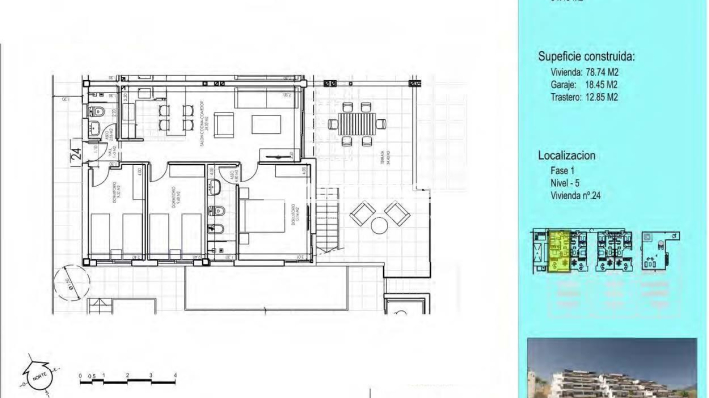
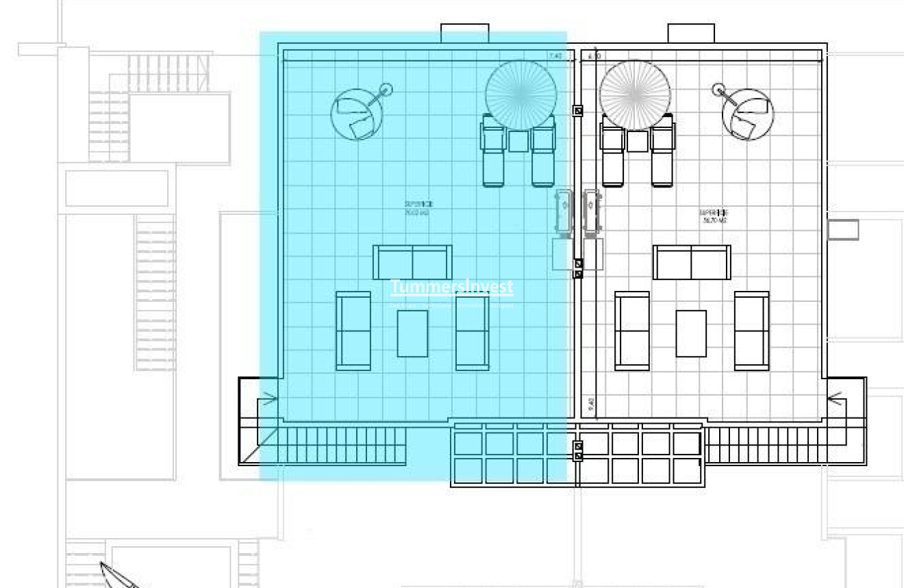
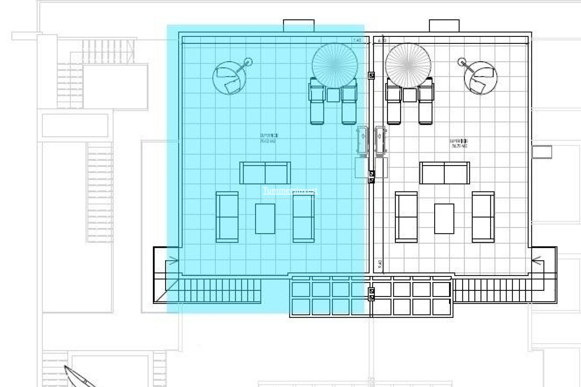
Neubauwohnungen mit Meerblick in Vera Playa, Almería Entdecken Sie diese außergewöhnliche neue Wohnanlage in Vera Playa, die in ihrer ersten Phase 27 moderne Wohnungen bietet. Dieses Projekt wurde so konzipiert, dass es Komfort, Funktionalität und einen spektakulären Blick auf das Mittelmeer vereint, und ist ideal für diejenigen, die ein stilvolles und komfortables Zuhause an der Costa de Almería suchen. Moderne Wohnungen mit Meerblick Jede Wohnung wurde sorgfältig geplant, um viel Tageslicht und einen angenehmen Außenbereich zu gewährleisten. Zur Auswahl stehen 1-, 2- und 3-Zimmer-Wohnungen, wobei die Wohnungen im Erdgeschoss über einen privaten Garten, die Wohnungen in den mittleren Etagen über eine großzügige Terrasse und die Penthäuser über eine private Sonnenterrasse verfügen. Dank der terrassenförmigen Anordnung bieten alle Wohnungen eine überdachte Terrasse mit atemberaubendem Meerblick. Hochwertige Ausstattung und komplett eingerichtete Wohnungen Alle Wohnungen sind komplett möbliert und ausgestattet und sofort bezugsfertig. Zur Ausstattung gehören: Möblierte Küche mit Geräten Komplett ausgestattete Badezimmer mit moderner Armatur Klimaanlage Privater Parkplatz und Abstellraum Exklusive Gemeinschaftseinrichtungen Das Highlight dieser Wohnanlage ist der Gemeinschaftspool, der von gepflegten Gärten umgeben ist und den perfekten Ort zum Entspannen, Sonnenbaden und Genießen der Zeit mit der Familie bietet. Erstklassige Lage in Vera Playa Vera Playa ist bekannt für seine langen Sandstrände, seinen entspannten Lebensstil und seine hervorragende Infrastruktur. Die Anlage befindet sich in einer ruhigen und dennoch gut angebundenen Gegend mit guter Anbindung an Dienstleistungen und Verkehrsverbindungen. Die wichtigsten Entfernungen sind: Strand: 700 m Desert Springs Golf Resort: 8 km Stadtzentrum von Vera: 5 km Yachthafen und Restaurants von Garrucha: 6 km Mojácar Gewerbegebiet: 10 km Flughafen Almería: 85 km (ca. 1 Stunde) Hochgeschwindigkeitsbahnhof AVE (im Bau): 3 km Ein ideales Zuhause oder eine Investitionsmöglichkeit Ob Sie einen dauerhaften Wohnsitz, einen Rückzugsort für den Urlaub oder eine sichere Investition suchen, diese neu gebauten Apartments in Vera Playa bieten ein hervorragendes Preis-Leistungs-Verhältnis in einer der begehrtesten Küstenregionen Almerías. Machen Sie Vera Playa zu Ihrem neuen Zuhause und erleben Sie die perfekte Kombination aus modernem Wohnen, Meerblick und mediterranem Lebensstil. Kontaktieren Sie uns noch heute, um einen Besichtigungstermin zu vereinbaren und sich Ihre Traumimmobilie an der Costa de Almería zu sichern.
Kontaktieren Sie unser Expertenteam und wir werden alle Ihre Zweifel lösen.