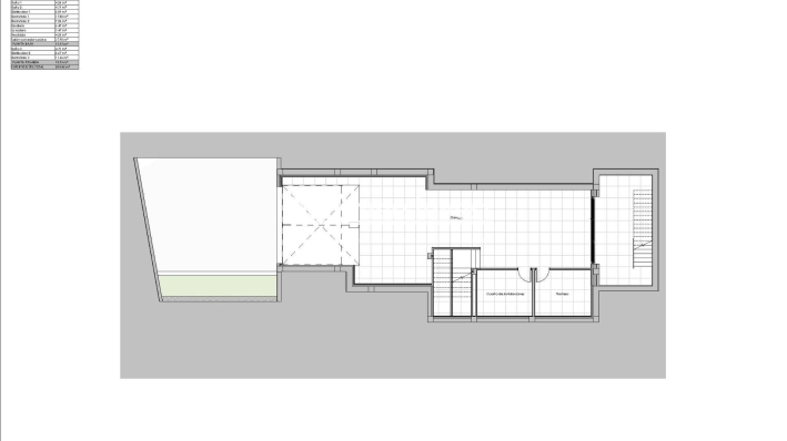
Villa de nueva construcción en Las Colinas Golf & Country Club, Orihuela Ubicación exclusiva en la Costa Blanca Sur Esta impresionante villa de nueva construcción se encuentra en Las Colinas Golf & Country Club, uno de los complejos turísticos más prestigiosos de Orihuela Costa. Ubicada en un frondoso valle de 330 hectáreas rodeado de bosques mediterráneos y zonas verdes, la comunidad ofrece un estilo de vida exclusivo con la máxima privacidad. El complejo se encuentra a solo 40 km del aeropuerto de Alicante y a 60 km del aeropuerto de Murcia-Corvera, con hermosas playas mediterráneas a poca distancia en coche. Villa moderna con distribución espaciosa Diseñada pensando en la elegancia y el confort, esta villa se distribuye en dos plantas más un sótano. Cuenta con 3 dormitorios, cada uno con baño en suite, y un aseo de invitados. La planta baja incluye una cocina abierta conectada al salón, dos dormitorios y acceso a una gran terraza con una piscina privada de 60 m2 y un jardín paisajístico. La primera planta ofrece un dormitorio privado en suite, mientras que el sótano incluye un amplio garaje para dos coches con luz natural y ventilación a través de un patio inglés. Calidades y tecnología de primera Construida con los más altos estándares, esta villa incluye: Aire acondicionado por conductos totalmente instalado Calefacción y agua caliente mediante sistema aerotérmico Iluminación LED interior incluida Baños totalmente equipados con muebles y mamparas de ducha Cocina equipada con electrodomésticos de primera calidad Sistema domótico para el máximo confort y eficiencia Estilo de vida y servicios del complejo Las Colinas Golf & Country Club es reconocido internacionalmente por su campo de golf de 18 hoyos, considerado uno de los mejores de España. El complejo ofrece una amplia gama de servicios para los residentes, incluyendo pistas de tenis y pádel, un moderno gimnasio, instalaciones de bienestar y masajes, restaurantes gourmet y un minimercado con pan recién horneado todos los días. Con más de 200 000 m2 de paisajes mediterráneos, los residentes pueden disfrutar de paseos panorámicos entre la flora autóctona, así como entre campos de naranjos y limoneros. La combinación de naturaleza, exclusividad y servicios de primera calidad hace de Las Colinas un lugar verdaderamente único para vivir. Su hogar exclusivo en Orihuela Costa le espera Esta villa en Las Colinas Golf es más que una propiedad; es un estilo de vida que combina lujo, privacidad y naturaleza. Póngase en contacto con nosotros hoy mismo para concertar una visita y asegurarse su nuevo hogar en uno de los complejos turísticos más prestigiosos de la Costa Blanca Sur.
Contacta con nuestro equipo de expertos y resolveremos todas tus dudas.