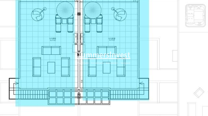
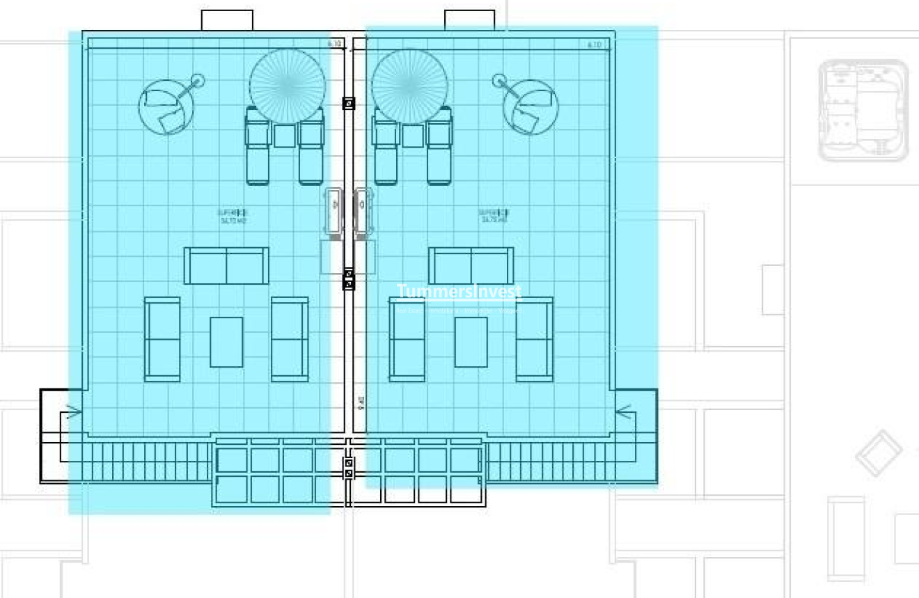
Apartamentos de nueva construcción con vistas al mar en Vera Playa, Almería Descubra esta excepcional promoción residencial en Vera Playa, que ofrece 27 modernos apartamentos en su primera fase. Diseñado para combinar comodidad, funcionalidad y espectaculares vistas al mar Mediterráneo, este proyecto es ideal para quienes buscan una vivienda en la Costa de Almería con estilo y comodidad. Viviendas modernas con vistas al mar Cada apartamento ha sido cuidadosamente diseñado para maximizar la luz natural y la vida al aire libre. Las opciones incluyen distribuciones de 1, 2 y 3 dormitorios, con plantas bajas con jardines privados, plantas intermedias con amplias terrazas y áticos con soláriums privados. Gracias al diseño en terrazas, todas las viviendas disfrutan de terrazas descubiertas con impresionantes vistas al mar. Acabados de calidad y viviendas totalmente equipadas Todas las propiedades están completamente amuebladas y equipadas, listas para entrar a vivir. Las características incluyen: Cocina amueblada con electrodomésticos incluidos Baños completos con accesorios modernos Sistema de aire acondicionado por conductos Plaza de aparcamiento privada y trastero Instalaciones comunitarias exclusivas Lo más destacado de este complejo residencial es su piscina comunitaria, rodeada de jardines paisajísticos, que crea el espacio perfecto para relajarse, tomar el sol y disfrutar en familia. Ubicación privilegiada en Vera Playa Vera Playa es conocida por sus largas playas de arena, su estilo de vida relajado y sus excelentes servicios. La urbanización se encuentra en una zona tranquila pero bien comunicada, con fácil acceso a los servicios y al transporte. Distancias clave: Playa: 700 m Desert Springs Golf Resort: 8 km Centro de Vera: 5 km Puerto deportivo y restaurantes de Garrucha: 6 km Parque comercial de Mojácar: 10 km Aeropuerto de Almería: 85 km (aprox. 1 hora) Estación de tren de alta velocidad AVE (en construcción): 3 km Una vivienda ideal o una oportunidad de inversión Tanto si busca una residencia permanente, un refugio para las vacaciones o una inversión segura, estos apartamentos de nueva construcción en Vera Playa ofrecen una excelente relación calidad-precio en uno de los destinos costeros más deseados de Almería. Haga de Vera Playa su nuevo hogar y disfrute de la combinación perfecta entre la vida moderna, las vistas al mar y el estilo de vida mediterráneo. Póngase en contacto con nosotros hoy mismo para concertar una visita y asegurarse la propiedad de sus sueños en la Costa de Almería.
Contacta con nuestro equipo de expertos y resolveremos todas tus dudas.