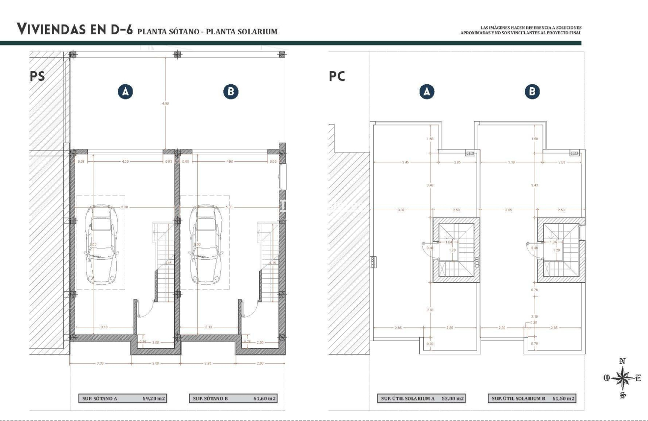
New Build Townhouses with Solarium and Basement Garage in Bigastro Vega Baja Exclusive Development of Only Two Modern Homes This boutique new build project consists of just two townhouses in the peaceful town of Bigastro, located in the Vega Baja area of the Costa Blanca South. Designed with a practical layout across several levels, these homes combine space, comfort and energy efficiency in a well connected residential setting. Bigastro is known for its quiet atmosphere, traditional Spanish character and excellent access to nearby towns, beaches and services. It offers a relaxed lifestyle while being close to everything needed for daily living, making it ideal for both permanent residence and holiday use. Spacious Layout Across Four Levels Each property is distributed over basement, ground floor, first floor and rooftop solarium, providing generous interior and exterior living areas. The 59 m2 basement is designed as a private garage with motorized access door, offering secure parking and additional storage space. On the ground floor, you will find a bright open plan living room with kitchen, a guest toilet and two terraces, one at the front and one at the rear, allowing natural light and ventilation throughout the day. The first floor features 3 bedrooms and 2 bathrooms, one of them ensuite, plus an additional terrace. On the top level, a private rooftop solarium of approximately 40 m2 provides the perfect space to relax, sunbathe or create an outdoor chill out area. Quality Features and Energy Efficient Systems These homes are built with modern materials and thoughtful details to ensure comfort and efficiency, including: Reinforced security entrance door Aerothermal system for hot water Photovoltaic solar panel Electric shutters in living room and bedrooms Pre installation of ducted air conditioning Motorized garage door Residents also have access to the communal swimming pool within the urbanization, adding extra value for leisure and relaxation. Well Connected Location Close to Beaches and Services Bigastro town center 0.5 km Orihuela city 5 km Guardamar del Segura beaches 15 km Zenia Boulevard Shopping Center 20 km Vega Baja Hospital 10 km Alicante International Airport 48 km Several golf courses within 15 km The nearby AP 7 motorway provides fast connections to Alicante, Murcia and the surrounding coastal towns. An Excellent Opportunity in a Growing Residential Area With local shops, schools, sports facilities, parks and restaurants, Bigastro is becoming increasingly popular among both national and international buyers seeking quality of life and good connections. Contact us today to receive more information or to arrange a visit to these exclusive new build townhouses in Bigastro.
Contact our team of experts and we will solve all your doubts.